Riverhead 2nd Floor

First level floor plan

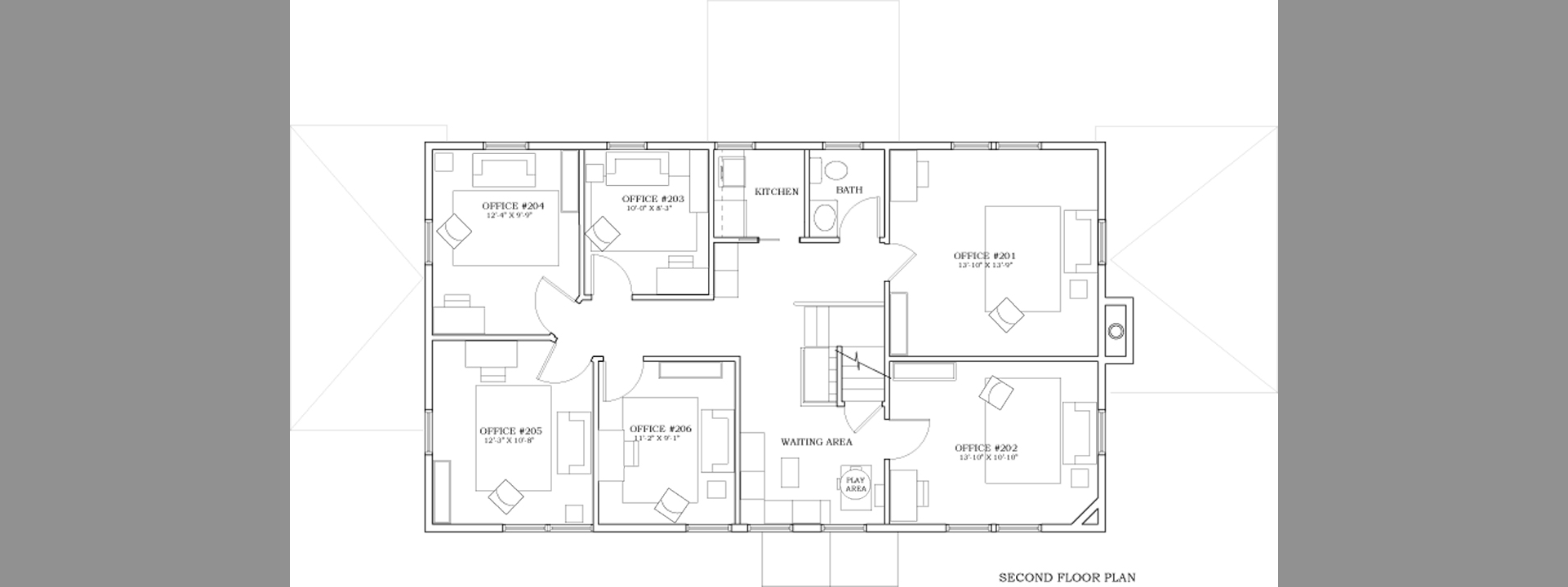
Second level floor plan

The second floor is comprised of 6 offices (120-180sq.ft. each) with a private formal entrance, kitchen, a bathroom and waiting area. All rooms have lots of windows with plenty of natural light.

Click here for high resolution PDF of 2nd level floor plan

-Both floors have separate, private entranceways with electronic locks for client privacy and safety.

-Optional conference room time for group therapy is available upon request.

-Included are utilities, Wi-Fi, fax, copier and scanning accessibility.

-Flexible arrangements support your space needs whether it is for one day, a full week or anything in between.

-Our classic design approach is focused on a therapeutic space and as such provides custom designed background lighting features, soothing colors and a calm atmosphere.

-Solutions’ renovated historic site is conveniently located in the heart of Riverhead’s historic district, with ample parking and accessibility.

-Contact us for a no obligation meeting about solutions for your business and space needs.